Ветряная мельница — это не только красивый элемент ландшафта, но и функциональный объект, который может стать акцентом в саду. В статье представлены чертежи, схемы и фото для создания декоративной ветряной мельницы своими руками. Вы узнаете о различных вариантах мельниц, их размерах и практическом применении, а также получите пошаговые инструкции по созданию этого украшения для вашего участка.
Варианты и разновидности декоративных ветряных мельниц
Модели различных размеров можно создать своими руками, исходя из их функционального назначения.
Декор зависит от выбранного дизайнерского подхода.
Каменные или деревянные изделия выглядят оригинально на участке. Однако, если говорить о каменных поделках, то их изготовление требует определенных навыков, поэтому лучше остановиться на деревянных вариантах.
Существует два типа ветряных мельниц. Одни имеют фиксированные лопасти, а другие – вращающиеся, которые реагируют на ветер. Последние не только красивы, но и функциональны. Если установить несколько реек у основания и углубить их на 30-50 см, вибрация от лопастей будет отпугивать кротов, передаваясь на поверхность земли.
Ветряная мельница, созданная своими руками, станет уникальным элементом ландшафта и ярким акцентом в любом дизайнерском решении. Кроме того, для такой поделки можно найти и практическое применение:
- Каменную конструкцию можно использовать не только как элемент декора, но и в качестве мангала. Поскольку она не мобильная, перед строительством стоит определиться с местом.
- Под ветряную мельницу можно стилизовать собачью будку.
- Деревянные переносные мельницы могут закрыть выступающие водопроводные трубы или люк септика.
- Большая ветряная мельница добавит участку деревенский шарм и скроет неприглядные постройки, такие как уличный туалет.
- Объемная конструкция с дверью может стать отличным местом для хранения садового инвентаря.
- Если на участке есть искусственный водоем, большая ветряная мельница на его берегу станет не только элементом дизайна, но и местом для хранения рыболовных принадлежностей или оборудования для очистки.
Совет! Для семьи с детьми домик под ветряную мельницу создаст атмосферу сельской жизни и станет любимым местом для игр ребенка.
Ниже представлены несколько фотографий примеров ветряных мельниц, сделанных своими руками.
Создание декоративной ветряной мельницы для сада своими руками – это увлекательный процесс, который позволяет не только украсить участок, но и развить творческие навыки. Эксперты рекомендуют начать с выбора материалов: дерево, фанера или даже пластиковые бутылки могут стать отличной основой. Важно учитывать устойчивость конструкции, поэтому стоит использовать качественные крепления и защитные покрытия.
При проектировании мельницы следует обратить внимание на пропорции и детали, чтобы она гармонично вписывалась в общий ландшафт. Использование ярких красок и оригинальных элементов, таких как цветные лопасти или декоративные акценты, придаст изделию индивидуальность.
Не менее важным аспектом является правильное размещение мельницы: она должна находиться в открытом месте, чтобы ветер мог свободно вращать лопасти. Таким образом, создание ветряной мельницы станет не только интересным хобби, но и отличным способом добавить уникальности в садовый дизайн.
https://youtube.com/watch?v=US-4YcbPOTw
На каком месте лучше строить
Ветряная мельница украсит любой уголок сада, тем более, если сделана своими руками. Перед выбором габаритов учитывают размер участка. Слишком маленькая в большом саду не привлечет к себе внимания, значит, не сможет достойно дополнить дизайн. Объемная конструкция на стандартных шести сотках будет выглядеть нелепо.
Место выбирают также с учетом размера ветряной мельницы, ее должно быть хорошо видно. При расположении на клумбе цветы и декоративные растения должны не закрывать конструкцию, а подчеркивать.
Эффектно будет выглядеть этот элемент дизайна на возвышенности, поделка подтянет на себя внимание, отвлекая от недостатков в оформлении участка. Каменные конструкции идеально подчеркнут небольшой водоем или станут центральным акцентом на ухоженном газоне.
Важно! При выборе места учитывают, что ветряная мельница относится к деревенскому стилю.
Неважно из-какого материала сделана, она теряет привлекательность рядом с геометрически правильными конструкциями, четкими линиями, прямыми или острыми углами.
В идеале разместить недалеко от сруба колодца, круглой беседки. Если на участке есть деревянный мостик, можно поставить возле него. Гармонично сочетается ветряная мельница с садовой скамейкой или с импровизированной деревянной повозкой с оглоблями и колесами. В последнюю можно посадить низкорослые цветы.
Конструкции с вращающимися лопастями издают шум, который будет отпугивать пчел. Поэтому лучше поставить подальше от плодовых деревьев, требующих опыления.
| Этап работы | Необходимые материалы | Инструменты |
|---|---|---|
| 1. Планирование и дизайн | Эскиз или чертеж мельницы | Карандаш, бумага, линейка |
| Размеры и пропорции | ||
| Выбор места установки | ||
| 2. Изготовление основания и опоры | Деревянные бруски (50х50 мм или 70х70 мм) | Пила, рулетка, угольник |
| Доски для обшивки основания | Шуруповерт, саморезы | |
| Цемент, песок, щебень (для бетонирования) | Лопата, ведро, строительный миксер | |
| 3. Создание корпуса мельницы | Фанера или OSB-плиты (толщина 10-15 мм) | Лобзик, электрорубанок |
| Деревянные рейки (20х30 мм) для каркаса | Шлифовальная машинка, наждачная бумага | |
| Водостойкий клей для дерева | ||
| 4. Изготовление лопастей | Тонкая фанера, пластик или оцинкованный лист | Ножницы по металлу (для оцинковки) |
| Деревянные рейки для крепления лопастей | Дрель, сверла | |
| Болты, гайки, шайбы | ||
| 5. Сборка и установка механизма вращения | Металлический стержень (ось) | Сварочный аппарат (при необходимости) |
| Подшипники (2 шт.) | Гаечные ключи | |
| Металлическая труба (для крепления оси) | ||
| 6. Декорирование и защита | Краска для наружных работ (акриловая, масляная) | Кисти, валики |
| Лак для дерева (для защиты от влаги) | ||
| Декоративные элементы (фигурки, цветы) |
Интересные факты
Вот несколько интересных фактов о создании декоративной ветряной мельницы для сада своими руками:
-
Исторические корни: Ветряные мельницы изначально использовались для переработки зерна и подачи воды, но с течением времени они стали символом сельской идиллии и вдохновения для садоводов. Создание декоративной мельницы в саду может не только украсить пространство, но и отдать дань уважения этому историческому элементу.
-
Материалы и устойчивость: Для изготовления ветряной мельницы можно использовать различные материалы, такие как дерево, металл или даже переработанные материалы. Например, старые деревянные поддоны могут стать отличной основой. Важно выбирать устойчивые к погодным условиям материалы, чтобы мельница служила долго и не теряла своего внешнего вида.
-
Дизайн и индивидуальность: Декоративные ветряные мельницы могут быть выполнены в самых разных стилях — от классических до современных. Вы можете добавить уникальные элементы, такие как яркие краски, светодиоды для подсветки или даже маленькие садовые фигурки, чтобы сделать вашу мельницу настоящим произведением искусства и отражением вашего стиля.
https://youtube.com/watch?v=dX1jyb9t1ZQ
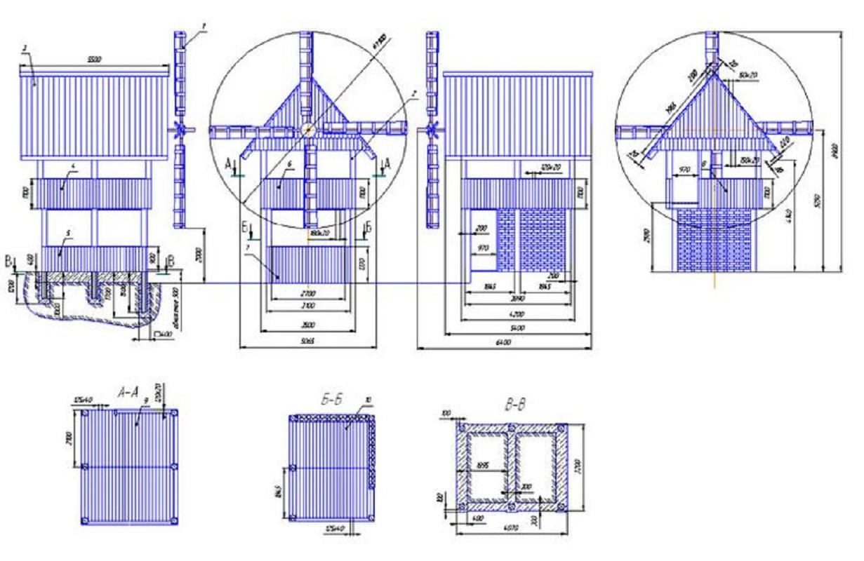
Чертежи и размеры декоративных ветряных мельниц
Внешний вид самодельного элемента дизайна будет неповторимым, однако основные элементы конструкции остаются схожими. После выбора места важно определить размеры будущего объекта.
Каждая конструкция включает в себя корпус, крышу и лопасти, высота которых может варьироваться от 30 см до 2 м. Чертежи для декоративной ветряной мельницы можно создать самостоятельно или воспользоваться готовыми вариантами. В случае использования готовых чертежей, при увеличении до нужного размера важно строго придерживаться всех пропорций.
Также возможно изготовление функциональной конструкции в виде мельницы-беседки по предложенной схеме.
Внизу представлены чертежи декоративных моделей высотой около 100 см и с размахом лопастей от 80 до 90 см.
Как сделать ветряную мельницу из дерева для сада своими руками
Для изготовления потребуются материалы:
- вагонка 13/1500;
- брус 20/40/2500 (8 шт.), 40/20/1500 (2 шт.);
- фанера 20 мм;
- наличник – 4 м (полукруг);
- шпилька М12 и 2 подшипника по размеру;
- гвозди;
- саморезы;
- гайки 12 мм;
- влагоотталкивающая пропитка;
- столярный лак;
- декоративный уголок из пластика.
Оборудование:
- электрический лобзик;
- шуруповерт;
- рубанок;
- 2 ножовки (по металлу и дереву);
- уголок;
- сверло;
- рулетка.
Подготовка деталей, частей, сборка – процессы последовательные. Ниже поэтапно представлено, как сделать на даче ветряную мельницу своими руками.
https://youtube.com/watch?v=PxWLT2P020Y
Сборка каркаса
Из толстого бруса подготавливают следующие отрезки:
- 100 см – 4 шт.;
- 60 см – 2 шт.;
- 51 см – 5 шт.;
- 44 см – 4 шт.;
- 24 см – 4 шт.;
- 42,5 см и 38 см по 2 шт. с одной стороны с срезом под углом 45 градусов.
Этапы сборки рамы:
- Длинные элементы крепятся сверху к отрезкам длиной 24 см, а снизу – к отрезкам длиной 44 см. В результате получаются две трапеции.
- Из оставшихся отрезков 24 см и 44 см формируется объемная конструкция. Все детали соединяются с помощью саморезов.
- Для крыши собирается рамка из 2 отрезков по 60 см, а также сверху и снизу устанавливаются отрезки по 51 см, которые фиксируются. Параллельно к отрезкам по 60 см добавляются две распорки по 51 см.
- Соединяются между собой заготовки с срезом, короткий элемент располагается к длинному, сверху устанавливается последний брус длиной 51 см.
- Формируется каркас. Важно, чтобы крыша выступала равномерно со всех сторон.
Все детали обрабатываются влагоотталкивающим средством и оставляются для высыхания.
Обшивка корпуса и подготовка лопастей
Из вагонки нарезают отрезки нужной длины, прикладывают к корпусу и отмечают карандашом линию спила. Обшивают все стороны и нижнюю часть крыши, верх не трогают.
Как сделать пропеллер:
- Берут два тонких бруса (40/20/1500) по центру каждого сверлят отверстие диаметром шпильки.
- Для соединения крестовины вырезают пазы.
- Чтобы крестовина хорошо вращалась, делают косые спилы от центра к краям.
- Из наличников нарезают заготовки и прикручивают к брусьям пропеллера.
Поперечины располагают расстоянием 3 см, нижняя 50 см, каждая последующая на 5 см короче
Установка механизма вращения и лопастей
- Из фанеры вырезают две детали для верхней части конструкции.
- С двух сторон отмечают места для установки шпильки, после чего корончатым сверлом создают отверстия, которые немного меньше диаметра подшипников, чтобы они плотно вошли.
- Убирают фанеру, устанавливают подшипники и надежно фиксируют их на каркасе крыши. Вставляют шпильку и закрепляют ее гайками с обеих сторон.
- Обшивают крышу вагонкой и фанеру с задней стороны, закрывая стыки уголком по всему периметру каркаса.
- Спереди в облицовке делают отверстие, устанавливают пропеллер, затем шайбу и гайку. Затягивают конструкцию так, чтобы лопасти могли свободно вращаться, а лишний металлический стержень обрезают.
Для украшения добавляют окошко и двери, а затем покрывают все лаком.
Заключение
Ветряная мельница своими руками украсит любой уголок сада или участка. Конструкция придаст дизайну неповторимый деревенский колорит. Процесс сборки несложный с минимальными затратами, вполне подойдут остатки строительного, столярного материала.
Уход и обслуживание декоративной ветряной мельницы
Уход за декоративной ветряной мельницей — это важный аспект, который поможет сохранить её привлекательный внешний вид и функциональность на протяжении многих лет. Правильное обслуживание включает в себя регулярные проверки, очистку и, при необходимости, ремонт.
1. Регулярные проверки
Периодически осматривайте мельницу на наличие повреждений. Обратите внимание на лопасти, основание и другие элементы конструкции. Если вы заметили трещины, сколы или другие дефекты, их следует устранить как можно скорее, чтобы предотвратить дальнейшее разрушение.
2. Очистка
С течением времени мельница может накапливать грязь, пыль и листья. Для поддержания её эстетического вида рекомендуется проводить очистку не реже одного раза в месяц. Используйте мягкую щетку или тряпку, чтобы удалить загрязнения. Если на поверхности появились пятна, можно использовать мыльный раствор, но избегайте агрессивных химикатов, которые могут повредить краску или материал.
3. Защита от погодных условий
Если ваша мельница изготовлена из дерева, рекомендуется периодически обрабатывать её специальными защитными средствами, которые предохранят от влаги и ультрафиолетового излучения. Металлические элементы также нуждаются в защите — используйте антикоррозийные составы, чтобы предотвратить ржавление.
4. Сезонное обслуживание
С приходом зимы стоит обратить особое внимание на состояние мельницы. Если вы живете в регионе с суровыми зимами, возможно, стоит разобрать конструкцию или укрыть её от снега и льда. Это поможет избежать повреждений от тяжести снега и ледяных образований.
5. Ремонт
Если в процессе эксплуатации вы заметили, что мельница перестала вращаться или лопасти повреждены, необходимо провести ремонт. Замените сломанные элементы, проверьте механизм вращения и при необходимости смазать подшипники. Если вы не уверены в своих силах, лучше обратиться к специалисту.
6. Обновление дизайна
Со временем может возникнуть желание изменить внешний вид вашей мельницы. Это можно сделать, перекрасив её в новый цвет или добавив декоративные элементы. Используйте краски, предназначенные для наружных работ, чтобы обеспечить долговечность обновления.
Следуя этим рекомендациям, вы сможете не только сохранить декоративную ветряную мельницу в хорошем состоянии, но и продлить её срок службы, наслаждаясь её красотой и функциональностью в вашем саду.
Вопрос-ответ
Где разместить ветряную мельницу во дворе?
Ветряные мельницы меньшего размера хорошо смотрятся в садах, около патио или вокруг декоративных прудов. В то время как более крупные мельницы эффектно смотрятся на открытых полях или вдоль подъездных путей.
Как закрепить ветряную мельницу на земле?
Я закрепил его в земле 12-дюймовыми штифтами для ландшафтного дизайна/бордюра. Пока всё хорошо. Бетон был бы слишком сильным. Мне очень нравятся ветряные мельницы, и они стоят дополнительных усилий.
Как пошагово работает ветряная мельница для детей?
Шаг 1: Ветряные мельницы построены с огромными лопастями. Когда мощные порывы ветра обрушиваются на эти лопасти, они начинают вращаться и совершать круговые движения. Шаг 2: Лопасти построены вокруг ротора. Ротор также вращается вместе с лопастями.
Советы
СОВЕТ №1
Перед началом работы определите место, где будет установлена мельница. Убедитесь, что это место хорошо освещается и защищено от сильных ветров, чтобы ваша конструкция была устойчивой и долговечной.
СОВЕТ №2
Выбирайте материалы, которые подходят для наружного использования. Дерево, пластик или металл должны быть обработаны специальными защитными средствами, чтобы предотвратить гниение и коррозию.
СОВЕТ №3
Не забывайте о дизайне! Используйте яркие краски и декоративные элементы, чтобы ваша мельница стала настоящим украшением сада. Можно добавить цветные ленты или фонарики для создания атмосферного освещения в вечернее время.
СОВЕТ №4
Обратите внимание на механизм вращения. Используйте легкие и прочные материалы для лопастей, чтобы они могли легко вращаться на ветру. Также убедитесь, что ось вращения надежно закреплена, чтобы избежать поломок.




